DEPARTAMENTO CON JARDÍN EN VENTA DE 145 M2 EN MIRAFLORES ZONA HUACA PUCLLANA
Miraflores, Lima, Lima
- $414,000 USD En Venta
- 3 Dormitorios
- 2 Baños
- 1 Medios baños
- 144.21 m² de construcción
- 2 Estacionamientos
Ver Tour Virtual
Detalles
- Tipo: Departamento
- ID: EB-UO9255
- Antigüedad: En construcción
- Recámaras: 3 dormitorios
- Baños: 2
- Medios baños: 1
- Superficie cubierta: 130.09 m²
- Piso: ground_floor
- Asesor: Diana Pérez-Taiman Harm
Descripción
Departamento en desarrollo en una calle de Miraflores cerca a la Huaca Pucllana muy privilegiada por tener conectividad y rápido acceso a avenidas importantes como Santa Cruz, Comandamte Espinar y muy cerca al Óvalo Gutierrez. Además de estar cerca a parques de MiraSidro, se encuentra en una zona gastronómica importante, teniendo muy cerca restaurates como Osaka y Cosme. También rodeado de supermercados y colegios como San Silvestre, inmaculado Corazón, Maria Reina.
Edificio de 5 niveles + terraza, solo 24 departamentos diseñado por reconocidos arquitectos mexicanos.
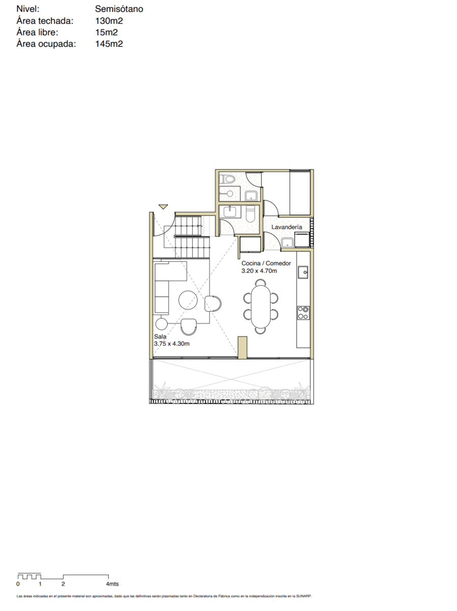
Espectacular departamento con jardín de 145m2. Cuenta con 3 dormitorios y cuarto de servicio completo. El dormitorio principal tiene baño y walk-in closet incorporado. La sala comedor tiene doble altura, es amplia y se integra con la cocina. El área social se conecta con un lindo jardín. El precio incluye dos estacionamientos.
*Observación: Proyecto en planos, metrajes y precios pueden variar según unidades disponibles.
Edificio de 5 niveles + terraza, solo 24 departamentos diseñado por reconocidos arquitectos mexicanos.
Espectacular departamento con jardín de 145m2. Cuenta con 3 dormitorios y cuarto de servicio completo. El dormitorio principal tiene baño y walk-in closet incorporado. La sala comedor tiene doble altura, es amplia y se integra con la cocina. El área social se conecta con un lindo jardín. El precio incluye dos estacionamientos.
*Observación: Proyecto en planos, metrajes y precios pueden variar según unidades disponibles.
Amenidades
- Cerca a Parque
- Garaje
- Ascensor
- Estacionamiento visita
- Portero
- Seguridad 24 Horas
- Estacionamiento techado
- Cerca de colegios
- Planta Baja
- Mascotas permitidas
- Jardín
- Terraza
- Vista a la ciudad
Ubicación
Miraflores, Lima, Lima
Contáctanos












